Se lignende hus
//= __('edit.floor.plan', 'components') ?>
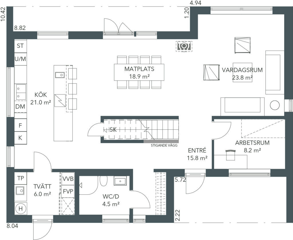
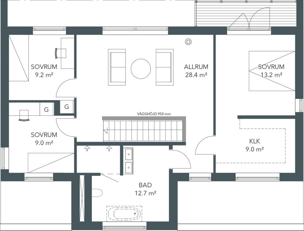
Hus 799
Dette kundehuset er inspirert av husmodellen Sidus.
| byggeår: | 2021 |
| Innvendig Flate: | 133.2m² |
| Antall rom: | 6 |
| Hvorav soverum: | 4 |