Se lignende hus
//= __('edit.floor.plan', 'components') ?>
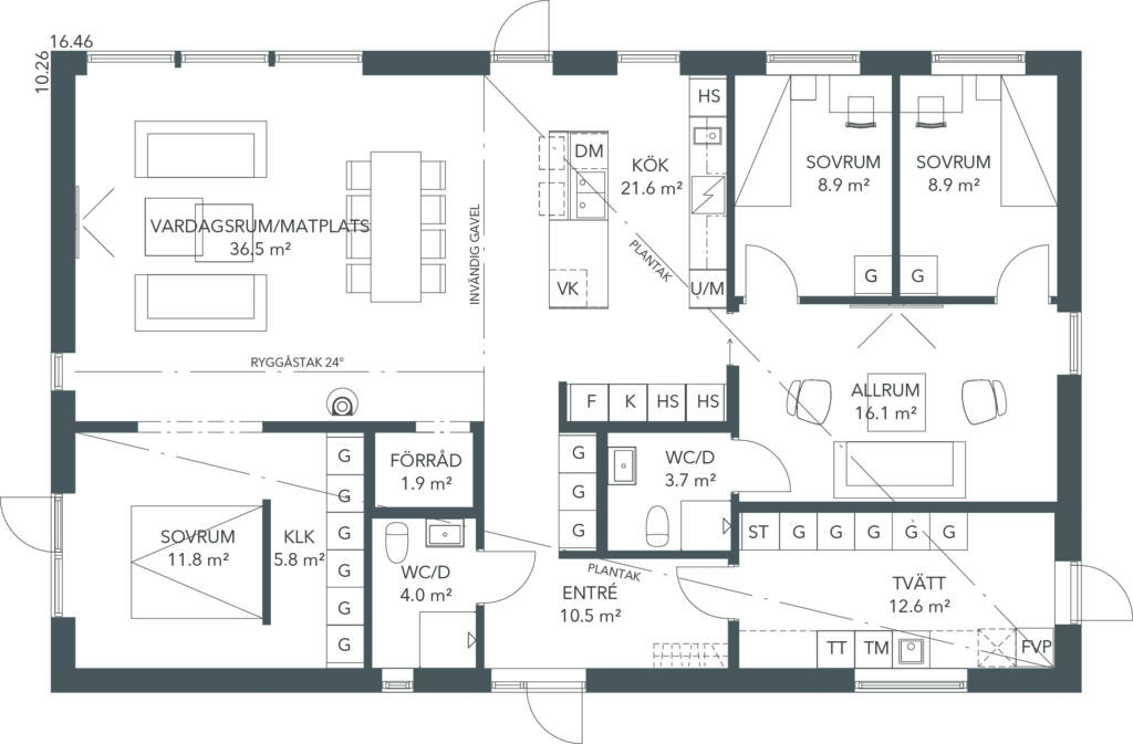
Hus 36
Dette huset er tegnet etter kundens ønsker.
| byggeår: | 2023 |
| Innvendig Flate: | 149m² |
| Antall rom: | 5 |
| Hvorav soverum: | 3 |