Se lignende hus
//= __('edit.floor.plan', 'components') ?>
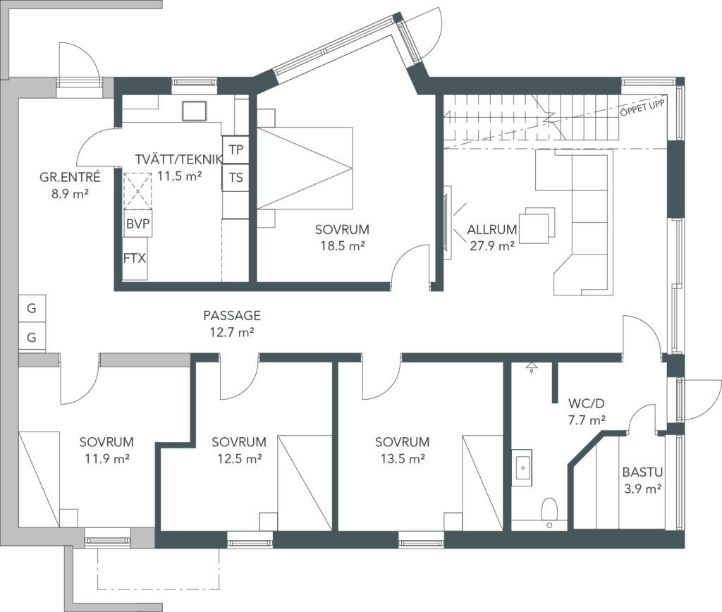
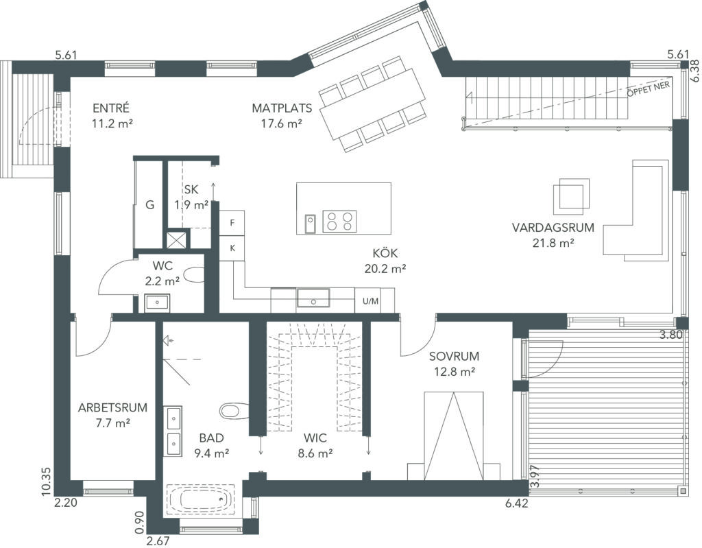
Hus 187
Dette huset er tegnet etter husmodellen Nordlys.
| byggeår: | 2022 |
| Innvendig Flate: | 262.4m² |
| 1 etasje: | 124m² |
| 2 etasje: | 138.4m² |
| Antall rom: | 8 |
| Hvorav soverum: | 4 |